IME BR Fraunhofer Institut
Gießen
Bauherr: Fraunhofer-Gesellschaft zur Förderung der angewandten Forschung e. V.
Kosten: 940.000 Euro
Fläche: 21.000 qm
Leistungen: Lph 2 – 8
Zeitraum: 2015 – 2021
Beteiligte: Heinle, Wischer und Partner Freie Architekten, Stuttgart, Andreas Walther
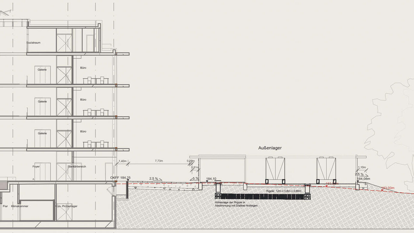
Freianlagenplanung für das neue Fraunhofer Institut für Molekularbiologie und Angewandten Ökologie IME-BR in Gießen
Der Entwurf leitet sich aus dem städtebaulichen Konzept ab. Dafür wird in Hinblick auf die zukünftige Entwicklung des Gebietes bereits heute östlich des
Institutsgebäudes ein großzügiger öffentlicher Platz angelegt. Zunächst als Parkplatz ausgebildet, wandelt er sich zu einem späteren Zeitpunkt zu einem
baumüberstandenen Mittelpunkt und Treffpunkt für Mitarbeiter der angrenzenden Institute. Mittels Materialwechsel wird dieser zentrale Ort als Intarsie inmitten der umliegenden Fahrwege ausgebildet. Der Platzcharakter wird durch großkronige, im Raster gepflanzte Bäume unterstützt (Kunst am Bau).
Die Dachflächen des Institutes und des Außenlagers werden mit einer extensiven Dachbegrünung angelegt. Diese Begrünung unterstützt das Mikroklima des Ortes und sorgt für die Nutzer der Dachterrasse im Sommer für Kühlung. Zudem führt eine vielfältige Bepflanzung zu einer visuellen Aufwertung der Aufenthalts- und
Arbeitsflächen.













